
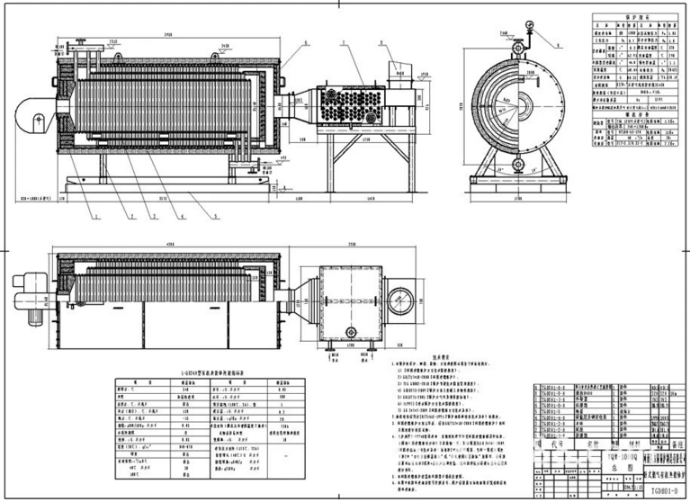
有机热载体炉是一种新型的特种锅炉又称导热油炉,具有低压、高温工作特性,其 供热温度可达到液相340℃或汽相400℃度。凡是需要均匀稳定地加热,且不允许火焰直接加热的工艺加热温度在150℃-380℃之间的各种生产场合中都可以采用有机热载体供热。有机热载体炉一般以生物质颗粒、油、汽为燃料,以导热油为介质,利用热油循环油泵强制介质进行液相循环,将热能输送给用热设备后再返回加热炉重新加热,具有在低的压力下获得高的工作温度,并且能对介质运行进行高精密控制工作。系统热利用率高,运行维修方便,是一种安全、**、节能的理想**供热设备。
1、液相循环供热,无冷凝排放热损失,供热系统热效率高。
2、获得低压高温热介质,调节方便,供热均匀,可以满足**的工艺温度。
3、工作介质受热及放热和温度升降对体积的变化,在系统内有补偿技术措施。
4、循环供热前有严格控制工作介质内空气、水分及其他低挥发物含量的技术措施。
5、大直径燃烧室:锅炉燃烧室由大直径盘管组成,燃料燃烧空间足,燃烧**,热效 率高。
6、*佳盘管设计:炉体内、外螺旋盘管采用多头、小管径钢管制成,盘管的热膨胀性能好、应力低、安全可靠。
7、*佳流程设计:烟气三回程,介质流经内外盘管,流速均匀,运行安全、稳定。
8、出力足:受热面布置合理,面积大,传热效果好,效率高、出力稳定充足。
9、多功能安全防爆装置:炉体尾部设有与炉膛连通的防爆装置,泄放燃料在炉膛中发
生剧烈爆燃时,sh瞬间产生的高能量,能自动复位,同时具有观火视镜和检修通道的功
能作用,利用运行中燃烧火焰的调整,炉膛检查、维护方便。
10、烟箱密封**:炉盖采用整体结构,多级迷宫式密封,密封工艺和材料特制,压缩
性好,**隔阻烟气的泄露,可重复使用。
11、自动控制措施完善:出油温度控制**,介质温度、压力及超烟设置多重控制保
护,确保运行安全可靠。
12、自动控制水平**:锅炉控制器采用西门子/德力西电器元件,性能可靠。具有液
晶显示中英文菜单型,人机对话远程控制的触摸屏型。




名 称:新乡市新大锅炉容器有限公司
传 真:0373-5591968
联系人:王经理
手 机:15837372021 18738300055
邮 编:453731
商务QQ:3022209105
网 址:http://www.brittsamoson.com